This calculator provides a guide to the amount of residential stamp duty you may pay and does not guarantee this will be the actual cost. This calculation is based on the Stamp Duty Land Tax Rates for residential properties purchased from 23rd September 2022 and second homes from 31st October 2024. For more information on Stamp Duty Land Tax, click here.
5 bedroom Detached House for sale, Plot 52, The Meadows, High Leven, TS15
Features and Description
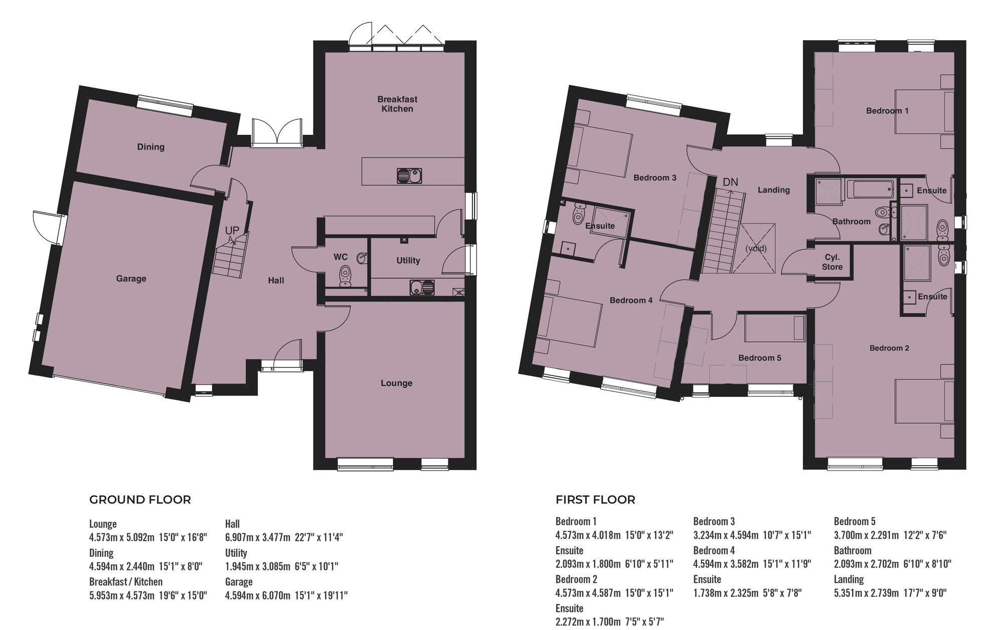
The Rudby is a beautiful 5 bedroom Detached home. Plot 52
Details
Mode Homes are delighted to announce the opening of the brand new marketing suite at The Meadows, High Leven. Comprising of 69 Contemporary new build 3, 4, and 5 bed homes. All plots have contemporary kitchens including AEG integrated appliances and space for a washing machine/dryer, spacious living areas and turf to front and rear gardens. Generously proportioned rooms help to create a light and airy space designed for modern day living. Please note that all sales particulars and images are for marketing and illustrative purposes only.
Key features
Fitted Symphony kitchen with dining and family area. Spacious living room, Downstairs WC, Study, En suite bathrooms, Family bathroom, Integral garage with driveway parking. Novi smart technology, Internet speed up to 1GB, 10 year LABC warranty.
IMPORTANT NOTE TO POTENTIAL PURCHASERS:
We strive to ensure that our sales particulars are accurate and reliable. However, these particulars do not constitute or form part of an offer or contract and should not be relied upon as statements of representation or fact. Any services, systems, and appliances mentioned in this specification have not been tested by us, and we provide no guarantee regarding their operational capability or efficiency. All measurements are intended as a guide for prospective buyers only and are not exact.
Plot 52, The Meadows, High Leven, TS15
Similar properties for sale by LSL Land & New Homes New Homes - North
The pin shows the exact address of the property
Energy Efficiency Rating
Very energy efficient - lower running costs
Not energy efficient - higher running costs
Current
N/APotential
N/ACO2 Rating
Very energy efficient - lower running costs
Not energy efficient - higher running costs
