This calculator provides a guide to the amount of residential stamp duty you may pay and does not guarantee this will be the actual cost. This calculation is based on the Stamp Duty Land Tax Rates for residential properties purchased from 23rd September 2022 and second homes from 31st October 2024. For more information on Stamp Duty Land Tax, click here.
1 bedroom  Flat for sale, Stafford Road, Wallington, SM6
 
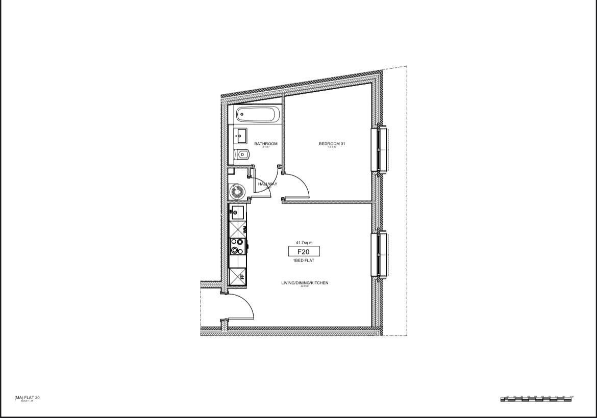
        Crosspoint House
From £270,000Crosspoint House, Wallington, SM6 9AA
Features and Description
- Now over 50% Sold!
- A Brand New 1 Bedroom Apartment!
- Beautifully finished with a high specification!
- Luxury fully tiled bathrooms!
- Stunning kitchens with Smeg appliances!
- New 125 Year Lease!
- 10 Year insurance backed warranty!
- Zone 5 Wallington station nearby!
- London Bridge in 33 minutes & Victoria in 43 mins!
Now over 50% Sold!
A brand new 1 bedroom apartment located on the first floor of this landmark development! Positioned in the heart of Wallington's bustling town centre, these thoughtfully designed apartments maximise light and space and are perfect for first-time buyers, downsizers, professionals, and families alike seeking a retreat from the city, while enjoying excellent transport links to London.
Each apartment showcases superior craftsmanship, with elegant design, high specifications, with select units featuring home office spaces, balconies, or private terraces.
Experience the epitome of modern luxury living at
Crosspoint House, where comfort, style, and convenience converge near the heart of the Town.
Specification
Living room
• Open plan living area
• Quality wood scratch resistant flooring
• Fermax Video door entry intercom system
• Sleek electric panel heating
Kitchen
• Dust Grey Lucente High gloss handleless kitchen cabinets
• Quartz Carrara stone worktops with 100mm splash back
• Integrated Smeg appliances including: washer/dryer, fridge/freezer, oven, hob and extraction hood
• Stainless steel sinks and taps
• LED light strip under the top units
Bedrooms
• Sleek electric panel heating
• Smooth plastered high ceilings
• USB sockets in master bedroom
• Quality wood scratch resistant flooring
Bathroom
• Fully tiled floor and walls
• Quality white bathroom suites
• Luxurious large square shower head
• Large mirror with LED strip lighting around
• Stainless steel sinks and taps
• Heated Towel Rail
Outside
• Secure cycle storage
• Allocated parking spaces at extra cost
• Beautifully landscaped grounds
Agents Note^
Please note that images used are of a Show Apartment and not of the home listed for sale. All measurements should not be relied upon for the use of buying fitted furniture, fixtures and fittings. Details of the specification for your each home is available on request. Parking Spaces are available to buy or maybe offered as an incentive - please ask our sales representative for details. Any incentives offered or implied are plot specific and may be withdrawn at anytime.
IMPORTANT NOTE TO POTENTIAL PURCHASERS:
We strive to ensure that our sales particulars are accurate and reliable. However, these particulars do not constitute or form part of an offer or contract and should not be relied upon as statements of representation or fact. Any services, systems, and appliances mentioned in this specification have not been tested by us, and we provide no guarantee regarding their operational capability or efficiency. All measurements are intended as a guide for prospective buyers only and are not exact.
Stafford Road, Wallington, SM6
 
        Additional Information
- 
                    Property refNHO240666
- 
                    TenureLeasehold
- 
                    Lease length124 years
- 
                    Ground RentContact the branch
- 
                    Ground Rent ReviewContact the branch
- 
                    Service ChargeContact the branch
LSL Land & New Homes Estate Agents New Homes - South
 
        Stamp duty calculator
Similar properties for sale by LSL Land & New Homes New Homes - South
 
         
         
         
         
         
         
         
         
         
        The pin shows the exact address of the property
Energy Efficiency Rating
Very energy efficient - lower running costs
Not energy efficient - higher running costs
Current
N/APotential
N/ACO2 Rating
Very energy efficient - lower running costs
Not energy efficient - higher running costs

 
         
         
         
         
        