This calculator provides a guide to the amount of residential stamp duty you may pay and does not guarantee this will be the actual cost. This calculation is based on the Stamp Duty Land Tax Rates for residential properties purchased from 23rd September 2022 and second homes from 31st October 2024. For more information on Stamp Duty Land Tax, click here.






Land/Plot for sale, Land West Of Hallfield Drive, Easington Village, SR8
Features and Description
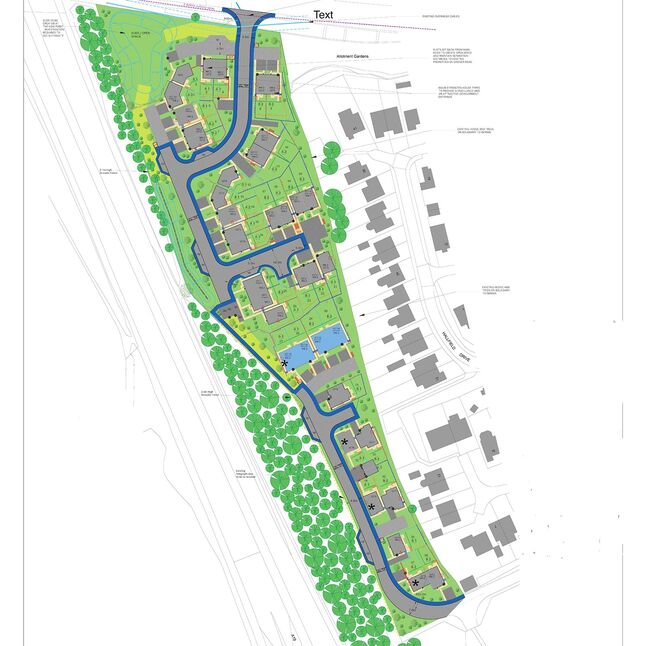
- Development opportunity for 38 units
- Approximately 4.15 acres
- Planning permission DM/22/01768/FPA
- Excellent commuter links
A site with full planning permission with all pre-commencement conditions discharged, for 38 dwellings in a proposed mix of 2, 3 and 4 bedroom homes. The site is located in Easington Village and benefits from great transport links, making it an attractive ready-to-go opportunity. The site is currently used for grazing purposes and extends to 4.15 acres.
The land is situated to the west of Hallfield Drive on the western edge of Easington, close to the A19 road that provides links south to Middlesbrough and North to Tyne and Wear. Easington benefits from good local schools and a range of services and amenities.
Full planning permission was approved subject to S106 5th June 2023, Application No. DM/22/01768/FPA.
IMPORTANT NOTE TO POTENTIAL PURCHASERS:
We strive to ensure that our sales particulars are accurate and reliable. However, these particulars do not constitute or form part of an offer or contract and should not be relied upon as statements of representation or fact. Any services, systems, and appliances mentioned in this specification have not been tested by us, and we provide no guarantee regarding their operational capability or efficiency. All measurements are intended as a guide for prospective buyers only and are not exact.
Land West Of Hallfield Drive, Easington Village, SR8
Similar properties for sale by LSL Land & New Homes Land






The pin shows the exact address of the property
Energy Efficiency Rating
Very energy efficient - lower running costs
Not energy efficient - higher running costs
Current
N/APotential
N/ACO2 Rating
Very energy efficient - lower running costs
Not energy efficient - higher running costs