This calculator provides a guide to the amount of residential stamp duty you may pay and does not guarantee this will be the actual cost. This calculation is based on the Stamp Duty Land Tax Rates for residential properties purchased from 23rd September 2022 and second homes from 31st October 2024. For more information on Stamp Duty Land Tax, click here.















Land/Plot for sale, 36, 38, 38a High Street, Old Whittington, Derbyshire, S41
Features and Description
- SUPERB INVESTMENT OPPORTUNITY -
- Potential £54,000 PA income
- Commercial property
- Planning permission granted CHE/22/00093/FUL
- Fabulous High Street location
- Superb views over Revolution House and the War Memorial
- Communal gardens
- Private gated parking
Large commercial properties standing proud at the end of a commercial High Street.
Situated the North side of Chesterfield, Old Whittington, has wonderful local amenities, good schools & this development opportunity is just a short walk away from the Chesterfield canal, located well to get to Chesterfield Train Station, M1 J29, Sheffield & Dronfield. Old Whittington Conservation area is to the north of the site
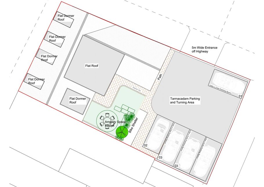
The planning permission which was granted 21/10/2023 is for Partial demolition of the existing buildings and extension/alterations for the creation of 3 shop units and 6 one bedroom apartments at first and second floor level. CHE/22/00093/FUL
The floorspace of the 6 residential unit varies from 43.5sqm to 55sqm, each unit is served by an open plan living/kitchen space and one bedroom with separate bathroom.
The revised scheme proposes off-street parking for 5 vehicles with a widened access to Station Road and separate pedestrian access. A designated area for bike storage and internal bin store.
IMPORTANT NOTE TO POTENTIAL PURCHASERS:
We strive to ensure that our sales particulars are accurate and reliable. However, these particulars do not constitute or form part of an offer or contract and should not be relied upon as statements of representation or fact. Any services, systems, and appliances mentioned in this specification have not been tested by us, and we provide no guarantee regarding their operational capability or efficiency. All measurements are intended as a guide for prospective buyers only and are not exact.
36, 38, 38a High Street, Old Whittington, Derbyshire, S41
Similar properties for sale by LSL Land & New Homes Land















The pin shows the exact address of the property
Energy Efficiency Rating
Very energy efficient - lower running costs
Not energy efficient - higher running costs
Current
N/APotential
N/ACO2 Rating
Very energy efficient - lower running costs
Not energy efficient - higher running costs