This calculator provides a guide to the amount of residential stamp duty you may pay and does not guarantee this will be the actual cost. This calculation is based on the Stamp Duty Land Tax Rates for residential properties purchased from 23rd September 2022 and second homes from 31st October 2024. For more information on Stamp Duty Land Tax, click here.
3 bedroom Property for sale, Leiston, East Suffolk, IP16
Features and Description
The price advertised represents purchasing a 40% share of the home. Full Price £300,000
Nestled in Leiston, this Persimmon home offers eco-friendly living close to Suffolk’s stunning Heritage Coast, where comfort meets coastal serenity.
• The Birkdale
Persimmon presents, the Birkdale.
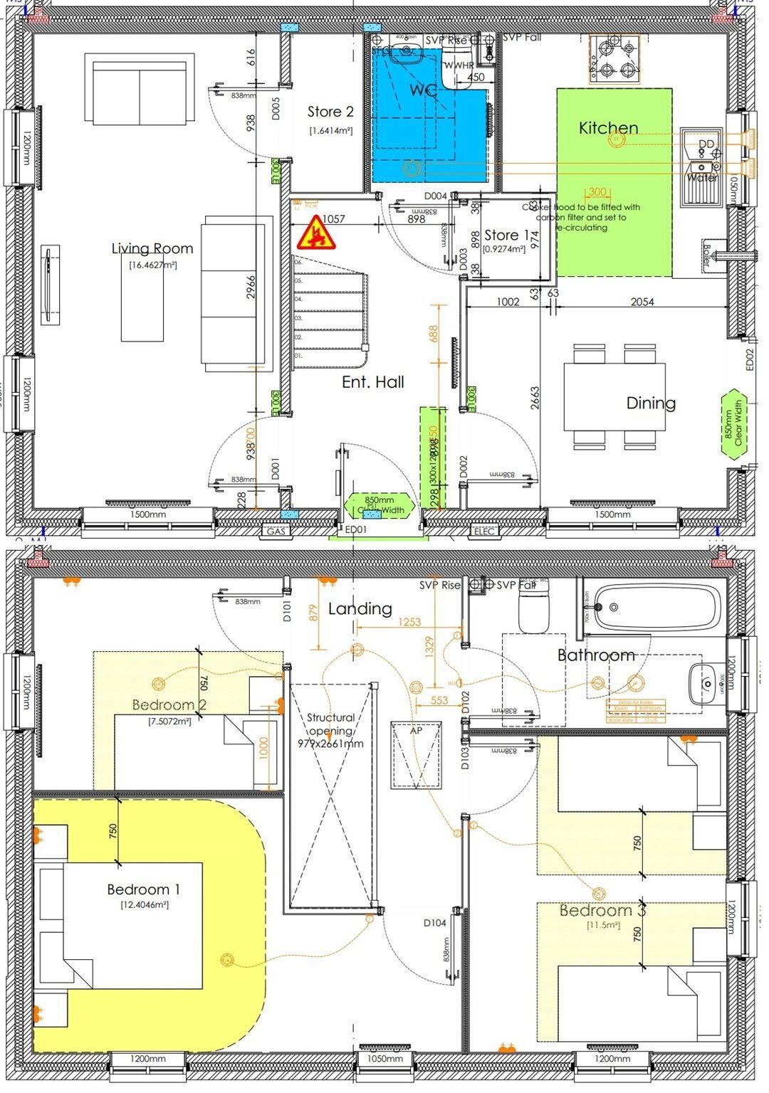
Upon entering through the front door, you will find a generous lounge to your Left and a combined Kitchen and Dining room with a fitted kitchen to your right with double doors leading out to the private garden, all complimented with a downstairs WC and an understairs storage cupboard.
The first floor has three good sized bedrooms and a modern house bathroom.
The property comes with allocated parking.
• The Development
Welcome to a range of brand new, energy-efficient homes Aldhurst View nestled in the charming town of Leiston, Suffolk, with the countryside close by along with good links to Great Yarmouth, Norwich and Ipswich.
• The Location
Leiston is a hidden Gem nestled close to Suffolk’s Heritage Coast.
This charming and historic market town offers the perfect blend of countryside tranquility, with a rich industrial heritage, as well as the beautiful landscapes of RSPB Minsmere and the Suffolk Coast & Heaths Area of Outstanding Natural Beauty.
Leiston is well-served by local shops, independent cafés, a leisure center, and the Leiston Film Theatre – one of the oldest purpose-built cinemas in the country.
Whether you're looking for a peaceful retreat, a vibrant community, or a base to explore the Suffolk coast, Leiston offers a unique lifestyle in one of the county’s most picturesque settings.
• Transport links
Leiston is well-connected by local roads to the Suffolk coast (Aldeburgh, Sizewell) and larger towns like Saxmundham, making it a good base for the wider East Anglia region
All measurements given are approximate
Walking
Summerhill school Secondary school - 4 minutes
Wild Aldhurst park and Garden - 7 minutes
Co-op Food - 10 minutes
Car
Saxmundham Train Station - 13 minutes
Dunwich Forest - 18 minutes
Ipswich - 49 minutes
Train from Saxmundham Train Station
Ipswich - 36 minutes
Colchester - 1 hour 20 minutes
Norwich - 1 hour 28 minutes
• Get on the property ladder with Shared Ownership
*Subject to availability, terms and conditions apply
Shared ownership Disclaimer
Shared Ownership offers an affordable route to home-ownership for those who may not be able to buy on the open market. With this flexible scheme, you can purchase a share of a new home—typically between 40% and 75%—and pay a reduced rent on the remaining portion. This means you’ll only need a mortgage for the share you are buying, helping to lower both your upfront costs and monthly payments. Over time, you have the option to increase your ownership share through a process known as "staircasing," potentially leading to full ownership of your home. Whether you're a first-time buyer or looking for a more manageable way to own a property, Shared Ownership makes getting on the property ladder more achievable.
Agents Note
Computer Generated Images used throughout are typical of the homestyle. Adjoining home styles, garage positions, handing of homes, external treatments, rooflines, brick colours and levels can vary from plot to plot. Side windows may be omitted depending on the configuration of the homes. Kitchen/utility layouts are for guidance only. Please refer to the kitchen drawings. All dimensions are for guidance only and are subject to change during construction, they should not be used for carpet sizes, appliance spaces or items of furniture. Please ask our Sales Team for details and terms and conditions of any incentives offered or mentioned.
IMPORTANT NOTE TO POTENTIAL PURCHASERS: We strive to ensure that our sales particulars are accurate and reliable. However, these particulars do not constitute or form part of an offer or contract and should not be relied upon as statements of representation or fact. Any services, systems, and appliances mentioned in this specification have not been tested by us, and we provide no guarantee regarding their operational capability or efficiency. All measurements are intended as a guide for prospective buyers only and are not exact.
Kitchen Dining Room
10'2" x 18'8" (3.11m x 5.68m)
Living Room
9'8" x 18'8" (2.95m x 5.68m)
Downstairs WC
4'11" x 6'12" (1.50m x 2.13m)
Bedroom 1
16'9" x 10'0" (5.10m x 3.05m)
Bedroom 2
9'9" x 8'5" (2.98m x 2.56m)
Bedroom 3
10'2" x 12'5" (3.09m x 3.79m)
Bathroom
10'2" x 5'12" (3.09m x 1.82m)
IMPORTANT NOTE TO POTENTIAL PURCHASERS:
We strive to ensure that our sales particulars are accurate and reliable. However, these particulars do not constitute or form part of an offer or contract and should not be relied upon as statements of representation or fact. Any services, systems, and appliances mentioned in this specification have not been tested by us, and we provide no guarantee regarding their operational capability or efficiency. All measurements are intended as a guide for prospective buyers only and are not exact.
Additional Information
-
Property ref1010-f861-aa05-6443
LSL Land & New Homes Estate Agents LSL The SO HUB
Stamp duty calculator
Similar properties for sale by LSL Land & New Homes LSL The SO HUB
The pin shows the exact address of the property
Energy Efficiency Rating
Very energy efficient - lower running costs
Not energy efficient - higher running costs
Current
N/APotential
N/ACO2 Rating
Very energy efficient - lower running costs
Not energy efficient - higher running costs
